
Le logement :
La résidence « le Loup Blanc » a été construite et livrée en octobre 2017 par RJO promotion, un acteur savoyard local pour qui la qualité est le fil conducteur de chaque projet réalisé.
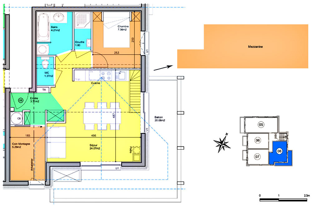
« Le loup Blanc » est un grand chalet en pierre et bois. Il comprend seulement 9 appartements, aux normes BBC- RT 2102 avec plancher chauffant individuel.

Exposé sud-est avec vue imprenable sur le domaine, il est d’une superficie de 60 m2 et offre 8 couchages répartis en :
- une chambre double avec TV. Lit de 160 X 200, rangements
- un coin montagne. Lit double de 140 X 200, rangements
- une mezzanine (hauteur d’enfants) avec 2 lits simples de 80 X 200 (lit gigogne) et un lit double de 160 X 200 + Grand Velux donnant sur le Mont Emy
- un grand séjour avec cuisine intégrée entièrement équipée + canapé-lit rapido de 140 X 200 (possibilité de 2 couchages supplémentaires)
- équipement séjour : TV + lecteur DVD + enceinte colonne Bluetooth/CD/radio
- une salle de bains avec baignoire + lave-linge/sèche-linge + sèche serviettes
- une salle d’eau avec douche à l’italienne + sèche serviettes
- des toilettes indépendants
- un balcon- terrasse d’angle de 20 m2 offrant une vue imprenable sur le domaine et le Mont Emy
- casier à skis privatif dans l’entrée de la résidence
- une place de parking individuelle en face de la porte d’entrée de la résidence
- Internet en accès libre en wifi ou Ethernet/RJ45
L’appartement est très fonctionnel puisqu’il peut répondre à différentes configurations de location : Famille nombreuse, famille accompagnée des grands-parents, 2 familles avec 2 X 2 enfants ou 1 et 3 enfants…
N.B : le linge de bain et les draps ne sont pas fournis mais location possible.
- Linge de bain (1 petite serviette + 1 grande/pers) = 6 €/personne
- 2 tapis de bain (1 pour la salle de bain + 1 pour la salle de douche)
- Draps = 15 €/ lit (drap housse + housse de couette + taie d'oreiller/lit)
A récupérer et à rapporter le samedi aux heures d'ouverture de l'agence immobilière "Albiez immobilier" qui encaissera directement la location des draps. (L'agence immobilière est mitoyenne de l'office du tourisme, à 250 mètres de l'appartement.)
Equipement bambins : 1 lit parapluie, 1 rehausseur, 1 matelas à langer, 1 porte bébé sac à dos
Equipement cuisine :
- 1 lave-vaisselle 12 couverts
- 1 four multifonction
- 1 four à micro-ondes
- 1 plaque à induction 3 feux
- 1 hotte aspirante
- 1 frigidaire grand format (286 L) dont un congélateur (34 L)
- 1 machine Nespresso
- 1 bouilloire électrique
- 1 cafetière électrique
- 1 grille-pain
- 1 cocotte minute
- 1 appareil à fondue
- 1 appareil à raclette/pierrade
- 1 appareil à crêpes
- vaisselles
- rangements
Balcon-terrasse :
- table en pin massif + bancs pliants 200 X 70 pour 8 personnes
- placard de rangement
- chaises longues
Accès :
Adresse : Résidence le Loup Blanc. Chemin de la Rua. 73300 Albiez-Montrond
N.B : En hiver, si vous ne possédez pas de pneus neiges, prévoyez des chaussettes et/ou des chaines pour accéder à la résidence. Les conditions climatiques peuvent varier en quelques heures.

Distances principales et durée
- St Jean de Maurienne : 15 km (25 min)
- Paris : 630 km (6 h 20). TGV direct st-Jean de Maurienne : 3 h 40
- Nice : 422 km (4 h45 par l’Italie)
- Lyon : 200 km (2 h20)
- Marseille : 450 km (4 h 20)
- Chambéry : 90 km (1 h 15)
- Bruxelles : 920 km (8 h 50)
- Turin (Italie) : 160 km (2 h 05)
